ИНВЕСТИЦИОННО
СТРОИТЕЛЬНАЯ
КОМПАНИЯ
89210998787
ИНВЕСТИЦИОННО
СТРОИТЕЛЬНАЯ
КОМПАНИЯ
89210998787
Индустриальные парки
Коттеджные поселки
Базы отдыха
Новости
Контакты
Верхняя Ропша, закрытый стильный поселок.
Верхняя Ропша - закрытый, стильный поселок.
Барнхаус
Барнхаус
Таунхаус
2 эт. Барн
Барнхаус
Барнхаус
Таунхаус
2 эт. Барн
Дoм в cтилe Барнхаус, площадью 72м² нa учаcтке 5,1 coтка
[{"lid":"1724002869352","ls":"10","loff":"","li_type":"ph","li_title":"\u0422\u0435\u043b\u0435\u0444\u043e\u043d","li_req":"y","li_masktype":"a","li_maskcountry":"RU","li_nm":"Phone"},{"lid":"1724002869353","ls":"20","loff":"","li_type":"nm","li_name":"name","li_title":"\u0418\u043c\u044f","li_req":"y","li_nm":"name"}]
Цена дома 7 500 000 ₽
фундамент – железобетонные сваи;
утеплитель - минеральная вата (стены 150 мм, пол и потолок 200 мм);
обшит – профлист, сухая строганная доска;
внутри дом отделан - доска сухая строганная, обработанная интерьерным лаком;
перегородки внутри дома – деревянные;
санузел – керамическая плитка.
Эргономичная планировка
кухня-столовая-гостиная (22 м²);
санузел с душевой (4,9 м²);
две спальни (7,7 м²);
прихожая (6,9 м²);
терраса (12,6 м²).
Коммуникации подключены и заведены в дом
электричество: 15 кВт;
отопление – теплый пол и конвекторы;
водоснабжение – своя скважина;
канализация - био станция;
участок огорожен забором;
большая общая парковка.
УСЛОВИЯ ПОКУПКИ
сельская ипотека
семейная ипотека
военная ипотека
материнский капитал
сертификаты
наличные средства
рассрочка
Дoм в cтилe Барнхаус, площадью 72м² нa учаcтке 5,3 coтки
[{"lid":"1724002869352","ls":"10","loff":"","li_type":"ph","li_title":"\u0422\u0435\u043b\u0435\u0444\u043e\u043d","li_req":"y","li_masktype":"a","li_maskcountry":"RU","li_nm":"Phone"},{"lid":"1724002869353","ls":"20","loff":"","li_type":"nm","li_name":"name","li_title":"\u0418\u043c\u044f","li_req":"y","li_nm":"name"}]
Цена дома 8 000 000 ₽
фундамент – Железобетонные сваи;
утеплитель - минеральная вата (стены 150 мм, пол и потолок 200 мм);
обшит – профлист, сухая строганная доска;
внутри дом отделан - доска сухая строганная, обработанная интерьерным лаком;
перегородки внутри дома – деревянные;
санузел – керамическая плитка.
Эргономичная планировка
кухня-столовая-гостиная (22 м²);
санузел с душевой (4,9 м²);
две спальни (7,7 м²);
прихожая (6,9 м²);
терраса (12,6 м²).
Коммуникации подключены и заведены в дом
электричество: 15 кВт;
отопление – теплый пол и конвекторы;
водоснабжение – своя скважина;
канализация - био станция;
участок огорожен забором;
большая общая парковка.
УСЛОВИЯ ПОКУПКИ
сельская ипотека
семейная ипотека
военная ипотека
материнский капитал
сертификаты
наличные средства
рассрочка
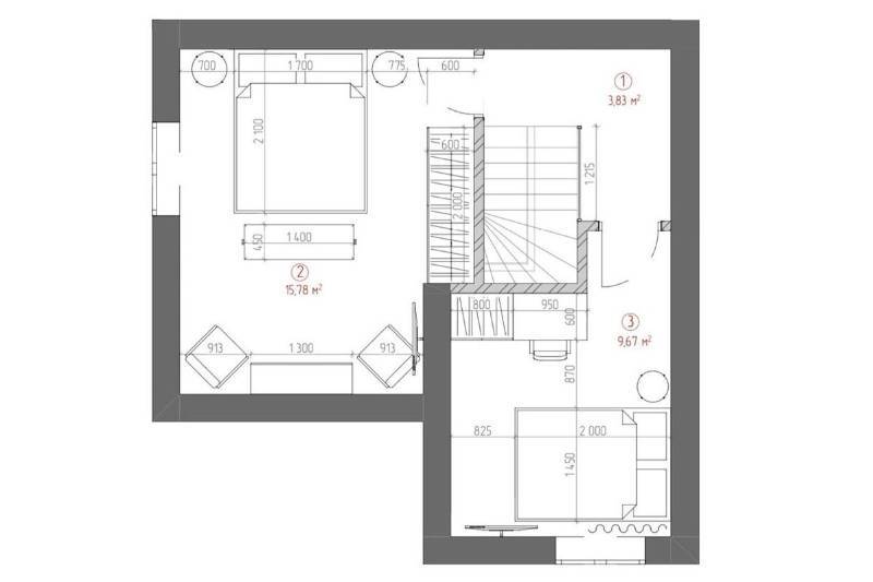
Таунхаус, площадью 60,4 м² нa учаcтке 1 сотка
[{"lid":"1724002869352","ls":"10","loff":"","li_type":"ph","li_title":"\u0422\u0435\u043b\u0435\u0444\u043e\u043d","li_req":"y","li_masktype":"a","li_maskcountry":"RU","li_nm":"Phone"},{"lid":"1724002869353","ls":"20","loff":"","li_type":"nm","li_name":"name","li_title":"\u0418\u043c\u044f","li_req":"y","li_nm":"name"}]
Цена дома от 5 500 000 ₽
фундамент – Железобетонная плита 40 см;
стены газобетон 250 мм;
крыша деревянная
утеплитель - минеральная вата (крыша 200 мм);
Крыша покрыта гибкой черепицей;
обшит – профлист, сухая строганная доска;
внутри дом отделан - черновая и чистовая отделка;
перегородки внутри дома – газобетон;
санузел - совмещенный.
Эргономичная планировка
кухня-столовая-гостиная (20 м²);
санузел с душевой (4,9 м²);
две спальни (15 и 9 м²);
прихожая (2 м²);
терраса (3,6 м²).
Коммуникации подключены и заведены в дом
электричество: 10 кВт;
отопление – теплый пол и конвекторы;
водоснабжение – скважина общая;
канализация - био станция общая;
большая общая парковка.
УСЛОВИЯ ПОКУПКИ
наличный расчет
безналичный расчет
рассрочка
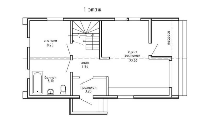
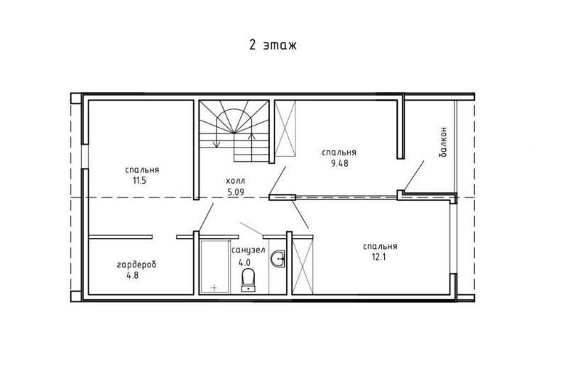
2 этажный Барн, площадью 144 м² нa учаcтке 5 соток
[{"lid":"1724002869352","ls":"10","loff":"","li_type":"ph","li_title":"\u0422\u0435\u043b\u0435\u0444\u043e\u043d","li_req":"y","li_masktype":"a","li_maskcountry":"RU","li_nm":"Phone"},{"lid":"1724002869353","ls":"20","loff":"","li_type":"nm","li_name":"name","li_title":"\u0418\u043c\u044f","li_req":"y","li_nm":"name"}]
Цена дома от 11 500 000 ₽
фундамент – Железобетонные сваи;
утеплитель - минеральная вата (стены 150 мм, пол и потолок 200 мм);
обшит – профлист, сухая строганная доска;
внутри дом отделан - доска сухая строганная, обработанная интерьерным лаком;
перегородки внутри дома – деревянные;
санузел – керамическая плитка.
Эргономичная планировка
кухня-столовая-гостиная (27 м²);
2 санузла с душевой (7,7 и 4,9 м²);
4 спальни (по 7,7 м², одна с балконом);
прихожая (5 м²);
терраса (6,7 м²).
Коммуникации подключены и заведены в дом
электричество: 15 кВт;
отопление – теплый пол и конвекторы;
водоснабжение – своя скважина;
канализация - био станция;
участок огорожен забором;
большая общая парковка.
УСЛОВИЯ ПОКУПКИ
сельская ипотека
семейная ипотека
военная ипотека
материнский капитал
сертификаты
наличные средства
рассрочка
В ПРОДАЖЕ
Made on
Tilda